Unsere Philosophie

YOGA13 COMMUNITY
Hier geht es um Mensch sein dürfen, Gleichgesinnte treffen, Freunde finden, von Herz zu Herz.
Wir üben uns in Achtsamkeit und in Gelassenheit. Gehen respektvoll miteinander um. Wir nutzen die Matte um uns zu spüren, Kraft zu tanken, Gefühle wahrzunehmen, Gedanken und Empfindungen. Ein Ort, an dem du deine Energie Speicher auftanken kannst. Du aktivierst dein Yang, sowie deine Yin Energie, das schafft Balance!
Raus aus dem Kopf. Rein ins Herz. Raum für Liebe.
JUST BE YOURSELF!
WARUM DIE DREIZEHN?
Ist es nur die Hausnummer, oder gar eine Lebenseinstellung? Bringt sie nun Glück, oder Pech? Ist denn nicht Pech auch Glück zugleich? Sind es nicht die Hindernisse, die Herausforderungen des Lebens die uns wachsen lassen? Die uns Tiefe geben? Die unserem Leben mehr Charakter geben und somit uns selbst?
YOGA13 – FLOW AS YOU ARE


Warum Yoga?
Yoga ist ein ganzheitliches Konzept Körper, Geist und Seele in Einklang zu bringen. Es ist die Arbeit mit dir selbst, auf der Matte. Wenn du regelmäßig Yoga praktizierst, fühlst du dich wohl in deiner Haut, bist ausgeglichen, hast eine positive Lebensenergie und lernst, deine Persönlichkeit – dein volles Potential zu entfalten.
YOGA bringt dich zurück in dein Herz. Aus dem Funktionieren im Alltag, in dein persönliches Wachstum. In die Authentizität. Ins Vertrauen.
LOKAH SAMASTA SUKHINO BAVANTU
Mögen alle Lebewesen glücklich und frei sein, mögen meine Worte, Taten und Gedanken zum Glück aller beitragen.
yoga13
Marienplatz 13
70178 Stuttgart
0711 888 70 130
mail@yoga13.de
Du kommst mit der Bahn?
Den Marienplatz kannst Du mit öffentlichen Verkehrsmitteln sehr gut erreichen.
U Bahn U1, U9 & U34, Buslinien 41 & 43 und Zahnradbahn „Zacke“ 10 – Haltestelle “Marienplatz”.
Du kommst mit dem Auto?
Parkmöglichkeiten in den Nebenstraßen oder im APCOA Parkhaus Südtor (DM/Rewe Parkhaus). Kolbstr.5-7.
Komm vorbei
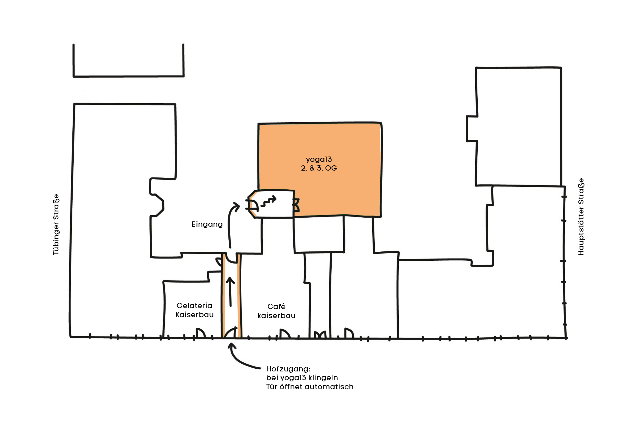
Der Eingang zum Yogastudio befindet sich direkt am Marienplatz, M14/M13. M13 ist das Hinterhaus- siehe Lageplan. Bitte nutze die Klingel an beiden Eingangstüren. Nach ca. 3 Sekunden öffnet sich die Tür. Das Studio ist im 3.OG. Es gibt leider keinen Aufzug.












